Borászat, Győrújbarát
Családi pincészet a Sokorói-dombságon, Győrújbaráton.
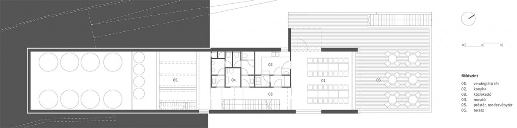
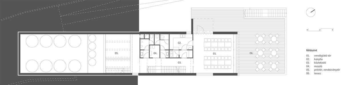
A pince épület, egy a pannonhalmi borvidéken működő családi pincészet számára készült. Az új épület Győrújbaráton, egy hosszú keskeny, erősen lejtős telken helyezkedik el, egy löszfalakba vájt pincesor felé vezető „szurdok” mellett. Az épület ezekhez a területi adottságokhoz igazodik, egyenes szerkesztéssel, merőlegesen „halad” a domb felé, majd tűnik el benne.
A domborzati viszonyokhoz igazodik az alkalmazott borászati technológia is. A tartályos érlelő tere a hosszú keskeny épület végén kapott helyett, így az már teljes egészében a föld alá került, így a tetején ki lehetett alakítani a feldolgozandó szőlő fogadóterét. A fogadótér és a tartályos érlelő összekötéseként egy galériás „présház” rendszer jött létre a borász által elképzelt technológiához igazodva.
Az új pince épület minél jobban igyekszik kiszolgálni az eseményközpontú működést. Az épületben helyet kapó vendéglátó tér működéséhez külső terek, és a szüreti időszak leteltével a többszintes „présház” tér is csatlakozhat.
A tömegformálás egyszerű, a technológiát, és domborzatot követi. A választott külső anyagok, mint a látszón maradó vasbeton kéregfal, és a korcolt rézlemez burkolat, időtállóak, és kellemes kontrasztot alkotnak.
Tervezés: 2015
Kivitelezés: 2016-











